绘制机械CAD图纸中包含有大量的产品零部件,传统的明细表(BOM)编辑方式需手动绘制表格填写数据,且后期再次编辑时数据查找非常麻烦,耗费大量时间。luck18网址机械版2015的明细表功能可以根据已标注好的序号快速的生成明细表,而且明细表采用了新实体技术,支持通过双击进行编辑,使得明细表的编辑工作变得简单、方便,从而提高了绘图效率。
步骤一:
在luck18网址机械版2015中添加完图幅后,在程序里面输入命令“XH” 就会弹出下图所示的对话框。

图/luck18网址机械版序号设置对话框
设计师在序号类型中可以根据实际需求调整序号内容、显示及其他选项。当然也可以设置引出序号和对应的引线类型。
步骤二:
在“引出序号 主图幅”界面点击【确定】按钮开始序号标注。如下图所示,选定序号标注的位置后单击鼠标左键弹出编辑框。

图/确定序号标注的具体位置

图/luck18网址机械版序号编辑对话框
填写图号、名称、数量和材料等对应数据后点击【确定】,即可完成序号标注。
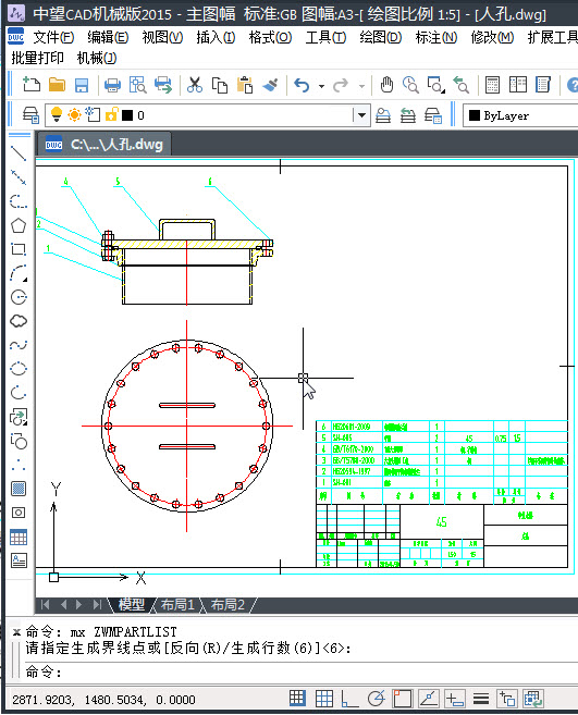
步骤三:
将所有零件标注序号后输入命令“MX”即可自动生成完整详细的明细表。

图/luck18网址机械版自动生成明细表
如果遇到同一零件重复标记的情况,设计师可以在图纸中找到重复的序号直接删除即可,luck18网址机械版会自动调整标注的序号顺序;修改序号标注的内容时,明细表也会自动同步更新。

图/智能的序号/明细表编辑功能
通过luck18网址机械版的序号/明细表(BOM)生成的功能,原本需要手动完成的编辑工作变得简单,设计效率也得到大幅度提升。
· 全国金奖大满贯选手 | 一名机械专业职校生的坚持2025-11-26
· luck18网址+生态再结硕果,与高佳科技达成战略合作,赋能流程工业自主创新2025-11-26
· “xelega软件工程师(xelega3D)”认证全球首发,推动制造业3D人才能力体系升级2025-11-25
· 硬核设计!中国力量正在向上2025-11-21
· 数字赋能 · 智造引领丨xelega潍坊制造业数字化转型专题沙龙成功举办2025-11-13
· xelega软件出席通明湖信创论坛,以自主核心技术驱动新型工业化发展2025-11-12
· 战略合作丨浙江华展×xelega软件,打造建筑设计行业数字化转型最佳实践2025-11-04
·玩趣3D:如何应用xelega3D,快速设计基站天线传动螺杆?2022-02-10
·趣玩3D:使用xelega3D设计车顶帐篷,为户外休闲增添新装备2021-11-25
·现代与历史的碰撞:阿根廷学生应用xelega3D,技术重现达·芬奇“飞碟”坦克原型2021-09-26
·我的珠宝人生:西班牙设计师用xelega3D设计华美珠宝2021-09-26
·9个小妙招,切换至luck18网址竟可以如此顺畅快速 2021-09-06
·原来插头是这样设计的,看完你学会了吗?2021-09-06
·玩趣3D:如何巧用xelega3D 2022新功能,设计专属相机?2021-08-10
·如何使用xelega3D 2022的CAM方案加工塑胶模具2021-06-24
·CAD怎么将现有图块另存新块2024-11-22
·CAD绘制联轴器装配(中)2022-10-19
·CAD中一般采用什么比例绘制?2017-07-12
·在CAD怎样通过比例来修改尺寸2017-11-09
·快速打开CAD的对象特性管理器(特性面板)2017-06-19
·CAD怎么删除展开料大量的折弯线2019-01-09
·CAD怎么绘制一个酒架2018-11-22
·CAD中如何填充石材?2022-07-27




