CAD在绘制中线的时候,有些人的显示就是一条直线,这样会导致后期的绘图不方便和不明显,容易导致失误和不必要的麻烦。我们怎么才能设置好CAD的中心线呢?
我们来看快解决办法,分析一下这样的原因。
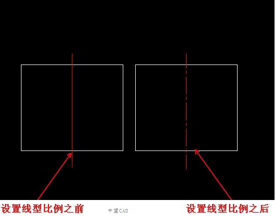
问题的所在是因为CAD中的线型比例设置的并不合理。
我们更改一下这部分的设置即可。我们在命令行中输入【LTS】即为线型比例的快捷键,回车后我们可以看到输入新线型比例因子,在这个部分我们输入2,回车后,发现现在的线段是一中心线显示的形式。我们可以看看下图的一个对比,是不是我们的中心线更加明显了。

推荐阅读: CAD中如何将圆画的更圆滑?
· 全国金奖大满贯选手 | 一名机械专业职校生的坚持2025-11-26
· luck18网址+生态再结硕果,与高佳科技达成战略合作,赋能流程工业自主创新2025-11-26
· “xelega软件工程师(xelega3D)”认证全球首发,推动制造业3D人才能力体系升级2025-11-25
· 硬核设计!中国力量正在向上2025-11-21
· 数字赋能 · 智造引领丨xelega潍坊制造业数字化转型专题沙龙成功举办2025-11-13
· xelega软件出席通明湖信创论坛,以自主核心技术驱动新型工业化发展2025-11-12
· 战略合作丨浙江华展×xelega软件,打造建筑设计行业数字化转型最佳实践2025-11-04
·玩趣3D:如何应用xelega3D,快速设计基站天线传动螺杆?2022-02-10
·趣玩3D:使用xelega3D设计车顶帐篷,为户外休闲增添新装备2021-11-25
·现代与历史的碰撞:阿根廷学生应用xelega3D,技术重现达·芬奇“飞碟”坦克原型2021-09-26
·我的珠宝人生:西班牙设计师用xelega3D设计华美珠宝2021-09-26
·9个小妙招,切换至luck18网址竟可以如此顺畅快速 2021-09-06
·原来插头是这样设计的,看完你学会了吗?2021-09-06
·玩趣3D:如何巧用xelega3D 2022新功能,设计专属相机?2021-08-10
·如何使用xelega3D 2022的CAM方案加工塑胶模具2021-06-24
·CAD附着DWF参考底图及剪裁2023-04-10
·CAD统计线段总长度的方法2025-08-04
·字体无法正确显示2017-02-07
·CAD如何处理不正常的文件2023-11-10
·CAD机械制图应用基础之平面图形绘图基础(一)2017-10-19
·CAD如何把图形摆正?2016-05-27
·CAD图层不能删除怎么办?2020-04-02
·如何设置CAD自动捕捉的大小2023-05-25




