我们在CAD中需要进行对平键和齿轮的安装,当这样是我们该如何正确操作绘制我们需要的内容,大家可参考我们下列的步骤,看看是否能够帮到大家。
1.轴的绘制
直线根据每个轴肩的尺寸先绘制轴的一半,然后利用镜像工具将已绘制的轴以一开始绘
制的水平中心线为对称轴镜像。轴由长度为58、56、41、60、10、10、30的轴段组成,而它们的对应半径分别是17.5、20、22.5、24、27.5、26、22.5。
绘制好后,进入块编辑器进行拉伸动作块操作。

2.键
矩形绘制一长56,宽为10的矩形,选用圆角工具倒圆角,倒角半径为5。
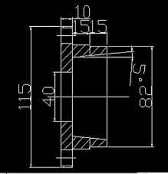
3.齿轮
齿轮剖视图是将齿轮半解剖得到的,具体形状和尺寸见视频操作。
齿轮俯视图是根据机械制图中的“高、平、齐”的对应原则绘制的,先用直线捕捉剖视
图上的参考点做水平拉伸做辅助线,选择圆捕捉辅助线上的切点做轮毂外形。最后利用阵列工具绘制齿轮上的齿,齿数为38个。
绘制好后,进入块编辑器进行缩放动作块操作。

4.滚球轴承

复习工具选项板窗口,通过工具选项板窗口直接插入滚珠轴承动态块。
工具选项板窗口操作:点击“工具”菜单>工具选项板,在弹出的选项板中选择机械模板中的滚珠轴承,直接插入CAD界面即可。
5.轴承盖子
具体操作见视频。这里要注意左轴承盖和右轴承局部形状不一样,左轴承盖在中心线位
置多一个直径40的通孔。

6.零件组装
以各个零件的水平中心线为基准线,利用移动和复制功能捕捉特征点进行安装。
装配好后,进入块编辑器中进行零件可见性块操作。

7.零件标号标注
利用新增功能:项目符号和列表对装配图上的零件进行注释。
操作步骤:绘图>文字>多行文字。在弹出的文字格式对话框中单击选项按纽,选择项目符号和列表。
8.提取快操作数据
利用新增功能:从块属性中提取数据对二维CAD操作环节的块操作信息进行数据提取。
操作步骤:工具>属性提取。
推荐阅读:CAD绘制三维鲜花教程
推荐阅读:CAD培训
· 全国金奖大满贯选手 | 一名机械专业职校生的坚持2025-11-26
· luck18网址+生态再结硕果,与高佳科技达成战略合作,赋能流程工业自主创新2025-11-26
· “xelega软件工程师(xelega3D)”认证全球首发,推动制造业3D人才能力体系升级2025-11-25
· 硬核设计!中国力量正在向上2025-11-21
· 数字赋能 · 智造引领丨xelega潍坊制造业数字化转型专题沙龙成功举办2025-11-13
· xelega软件出席通明湖信创论坛,以自主核心技术驱动新型工业化发展2025-11-12
· 战略合作丨浙江华展×xelega软件,打造建筑设计行业数字化转型最佳实践2025-11-04
·玩趣3D:如何应用xelega3D,快速设计基站天线传动螺杆?2022-02-10
·趣玩3D:使用xelega3D设计车顶帐篷,为户外休闲增添新装备2021-11-25
·现代与历史的碰撞:阿根廷学生应用xelega3D,技术重现达·芬奇“飞碟”坦克原型2021-09-26
·我的珠宝人生:西班牙设计师用xelega3D设计华美珠宝2021-09-26
·9个小妙招,切换至luck18网址竟可以如此顺畅快速 2021-09-06
·原来插头是这样设计的,看完你学会了吗?2021-09-06
·玩趣3D:如何巧用xelega3D 2022新功能,设计专属相机?2021-08-10
·如何使用xelega3D 2022的CAM方案加工塑胶模具2021-06-24
·CAD怎么利用对象捕捉查询距离2020-03-25
·CAD怎么成组2016-02-29
·CAD如何绘制电风扇2022-12-10
·luck18网址管理外部参照操作2018-08-03
·CAD如何将块内对象改为0图层且颜色随层2025-11-20
·CAD怎样调整填充内容大小2016-01-13
·如何设置CAD命令行的文字字体和颜色(CAD中命令行文字乱码怎么办)2023-07-10
·如何用最简单的方法在CAD画出倒角2017-03-01




