在CAD中,机械图样中的装配图的绘制通常采用两种方法。一种是直接利用绘图及图形编辑命令,按手工绘图的步骤,结合对象捕捉、极轴追踪等辅助绘图工具绘制装配图。这种方法光是读起来就感觉到很复杂,实际上,复杂是肯定的,而且容易出错,这就导致只能绘制一些比较简单的装配图。
第二种方法是“拼装法”。也就是先绘出各零件的零件图,然后将各零件以图块的形式“拼装”在一起,构成装配图。下面利用luck18网址提供的集成化图形组织和管理工具,用“拼装法”绘制铣刀头装配图。可供不懂的朋友参考。
首先,在菜单栏选择[工具]——[设计中心]选项,打开设计中心选项板,如图所示。在文件列表中找到铣刀头零件图的存储位置,在“内容区”选择要插入的图形文件,如座体.dwg,按住鼠标左键不放,将图形拖入绘图区空白处,释放鼠标左键,则座体零件图便插入到绘图区。

插入左端盖。用上面一样的方法,以A点为基准点插入左端盖。注意要充分使用缩放命令和对象捕捉功能来使得插入更加准确。接下来将插入的图形块进行“分解”,可以利用“擦除”和“修剪”命令删除或修剪多余的线条。

插入螺钉。以B点为基准点插入螺钉,删除、将多余线条修剪掉。注意相邻两零件的剖面线方向和间隔,以及螺纹联接等要符合制图标准中装配图的规定画法。

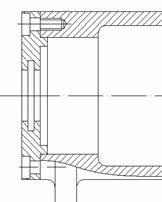
插入轴承。以C点为基准点插入左端轴承,并修改图形。

重复以上步骤,依次插入右端轴承、端盖和螺钉、带轮及轴端挡圈等,按规定画法进行绘制。
接下来绘制铣刀、键,插入轴端挡板等。画油封并对图形局部进行修改。
标注装配图尺寸。装配图的尺寸标注一般只标注性能、装配、安装等等一些重要尺寸。
编写序号。装配图中的所有零件都必须编写序号,其中相同的零件采用同样的序号,且只编写一次。装配图中的序号应与明细表中的序号一致。
绘制明细栏,明细栏中的序号自下往上填写。最后书写技术要求,填写标题栏。
推荐阅读:CAD中修改线性比例的操作方法
推荐阅读:机械CAD
· 全国金奖大满贯选手 | 一名机械专业职校生的坚持2025-11-26
· luck18网址+生态再结硕果,与高佳科技达成战略合作,赋能流程工业自主创新2025-11-26
· “xelega软件工程师(xelega3D)”认证全球首发,推动制造业3D人才能力体系升级2025-11-25
· 硬核设计!中国力量正在向上2025-11-21
· 数字赋能 · 智造引领丨xelega潍坊制造业数字化转型专题沙龙成功举办2025-11-13
· xelega软件出席通明湖信创论坛,以自主核心技术驱动新型工业化发展2025-11-12
· 战略合作丨浙江华展×xelega软件,打造建筑设计行业数字化转型最佳实践2025-11-04
·玩趣3D:如何应用xelega3D,快速设计基站天线传动螺杆?2022-02-10
·趣玩3D:使用xelega3D设计车顶帐篷,为户外休闲增添新装备2021-11-25
·现代与历史的碰撞:阿根廷学生应用xelega3D,技术重现达·芬奇“飞碟”坦克原型2021-09-26
·我的珠宝人生:西班牙设计师用xelega3D设计华美珠宝2021-09-26
·9个小妙招,切换至luck18网址竟可以如此顺畅快速 2021-09-06
·原来插头是这样设计的,看完你学会了吗?2021-09-06
·玩趣3D:如何巧用xelega3D 2022新功能,设计专属相机?2021-08-10
·如何使用xelega3D 2022的CAM方案加工塑胶模具2021-06-24
·CAD图纸打印模糊怎么办2023-05-22
·CAD怎么用缩放命令来放大圆形2018-12-03
·CAD计算弧长的多种方法2019-08-22
·CAD装配阀体(3)—接头螺杆2022-10-27
·如何找到CAD自动保存路径并复制2020-11-20
·如何自定义CAD中的手势精灵?2024-03-01
·鼠标中键在CAD中功能以及操作方式 2019-08-30
·CAD如何快速删除重叠的对象2019-08-16




