CAD水洗塔净化工程设计案例分享
现在很多工业方面的施工平面图都是可以用CAD来实现的,例如:重工业行业的除尘、净化、通风、中央空调等,下面为大家分享一个工业当中常见的水洗塔净化工程的案例。
在除尘领域当中,水洗塔的除尘效果也是非常环保的,它比较适合小型的车间净化使用,在行业中大面积的净化一般都是采用其它更大型的净化装置来做为主机,这样才能达到更好的效果。

在这个行业中,如果你想要设计出这么一套净化方案出来的话,首先,你必须要对工业净化原理和设备的使用特点有一定的了解才能做到,要不然的话,你无法成功的设计出一套合理的设计方案;其实,这和每个行业的CAD设计都是有关系的,假如你是室内设计的,你必然也是要对家居的摆放以及装修有一点的了解,不管你从事哪一行业的设计,对本身设计行业的了解是必修课。
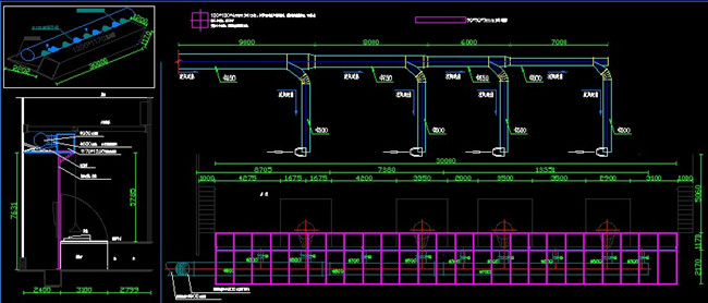
今天这个案例主要是讲得是一个工业熔解炉车间的空气净化系统,它主要的功能就是使车间设备产生的有毒或者有污染的气体进行净化排放,达到环保的目的。

设计所需元素:
一、主体设备(抽风机+水洗塔)
要想让里面的有害空气出来,首先要有个抽风机,即行业专业叫法“离心抽风机”,然后经过抽风机后再接入环保水洗塔,这样所排出来的空气才算是环保的。

二、抽风管道
空气是气体物质,要想输出,肯定必须得有管道才行,至于这个管道是采用什么材质来设计一般是需要根据客户的要求的,主要有镀锌板材和不锈钢板材两种。
三、抽烟罩
这个在抽风系统中以不同的角色出现,一般没有规定,主要根据现场而定,像这个工程案例,它就比较适合用抽风罩去进行集气。
以上就是水洗塔净化工程的平面图绘制的方案,希望大家的喜欢。
推荐阅读:CAD制图初学入门
推荐阅读:3D打印机
· 全国金奖大满贯选手 | 一名机械专业职校生的坚持2025-11-26
· luck18网址+生态再结硕果,与高佳科技达成战略合作,赋能流程工业自主创新2025-11-26
· “xelega软件工程师(xelega3D)”认证全球首发,推动制造业3D人才能力体系升级2025-11-25
· 硬核设计!中国力量正在向上2025-11-21
· 数字赋能 · 智造引领丨xelega潍坊制造业数字化转型专题沙龙成功举办2025-11-13
· xelega软件出席通明湖信创论坛,以自主核心技术驱动新型工业化发展2025-11-12
· 战略合作丨浙江华展×xelega软件,打造建筑设计行业数字化转型最佳实践2025-11-04
·玩趣3D:如何应用xelega3D,快速设计基站天线传动螺杆?2022-02-10
·趣玩3D:使用xelega3D设计车顶帐篷,为户外休闲增添新装备2021-11-25
·现代与历史的碰撞:阿根廷学生应用xelega3D,技术重现达·芬奇“飞碟”坦克原型2021-09-26
·我的珠宝人生:西班牙设计师用xelega3D设计华美珠宝2021-09-26
·9个小妙招,切换至luck18网址竟可以如此顺畅快速 2021-09-06
·原来插头是这样设计的,看完你学会了吗?2021-09-06
·玩趣3D:如何巧用xelega3D 2022新功能,设计专属相机?2021-08-10
·如何使用xelega3D 2022的CAM方案加工塑胶模具2021-06-24
·CAD文字沿着弧线排列如何设置?2022-04-02
·CAD属性块编辑命令2017-03-29
·CAD绘制完图形时如何求得部分面积2020-05-06
·CAD中如何绘制三相四线插座?2022-07-07
·CAD绘制锤子的步骤2022-09-13
·cad怎么画厂房的线条平面图?2018-09-05
·CAD修改修订云线颜色2016-10-26
·CAD图形跑出了绘图区或者不能进一步缩小放大的解决方法2018-08-28




