绘制建筑平面图前的准备工作?
用CAD绘制建筑平面图的时候,还需要做一些准备工作,具体是什么请看下面的分享。
在绘制建筑平面图的时候,我们要清楚的知道建筑平面图的组成,比如什么是轴线、什么是门窗、什么是墙体、什么是标注,只有了解了这些,才能快速的绘制出建筑平面图。
如图,轴线、门窗、阳台、标注、墙体。

绘制建筑平面图的操作步骤是:
1、打开xelegaCAD软件,界面是如下:

2、在常用菜单栏中找到图层工具栏,点击图层特性。并且新建“墙体/轴线/门窗/标注”图层,并给图层赋予属性(颜色/线型等),如图 :

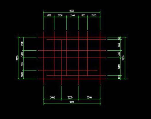
3、待软件图层建好之后,先在轴线图层上建立好轴线网,然后依托轴线网,在标注图层,标注轴线尺寸,完成轴线和标注,如图:

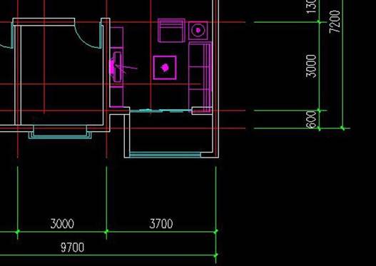
4、待轴线和标注图层完成之后,依托轴线绘制墙体,绘制完成之后,留出门窗的位置,待墙体绘制完成之后,绘制门窗,待门窗绘制完成之后,即可绘制家具,待家具完成之后,即完成建筑平面图的绘制。如图:

上面就是绘制建筑平面图需要准备的前提工作以及具体步骤,希望大家的喜欢。
推荐阅读:CAD制图初学入门
推荐阅读:中小学综合实践活动
· 全国金奖大满贯选手 | 一名机械专业职校生的坚持2025-11-26
· luck18网址+生态再结硕果,与高佳科技达成战略合作,赋能流程工业自主创新2025-11-26
· “xelega软件工程师(xelega3D)”认证全球首发,推动制造业3D人才能力体系升级2025-11-25
· 硬核设计!中国力量正在向上2025-11-21
· 数字赋能 · 智造引领丨xelega潍坊制造业数字化转型专题沙龙成功举办2025-11-13
· xelega软件出席通明湖信创论坛,以自主核心技术驱动新型工业化发展2025-11-12
· 战略合作丨浙江华展×xelega软件,打造建筑设计行业数字化转型最佳实践2025-11-04
·玩趣3D:如何应用xelega3D,快速设计基站天线传动螺杆?2022-02-10
·趣玩3D:使用xelega3D设计车顶帐篷,为户外休闲增添新装备2021-11-25
·现代与历史的碰撞:阿根廷学生应用xelega3D,技术重现达·芬奇“飞碟”坦克原型2021-09-26
·我的珠宝人生:西班牙设计师用xelega3D设计华美珠宝2021-09-26
·9个小妙招,切换至luck18网址竟可以如此顺畅快速 2021-09-06
·原来插头是这样设计的,看完你学会了吗?2021-09-06
·玩趣3D:如何巧用xelega3D 2022新功能,设计专属相机?2021-08-10
·如何使用xelega3D 2022的CAM方案加工塑胶模具2021-06-24
·CAD绘制哆啦A梦的步骤2022-08-23
·CAD线对象的编辑之修剪对象2018-01-17
·CAD如何任意弧线等分2016-09-26
·CAD指定角度绘制与测量标注2023-03-23
·为什么在CAD中光标在夹点上没有菜单提示?2023-12-26
·CAD输出PDF显示不全怎么办2015-10-29
·如何在CAD绘制螃蟹2022-02-07
·cad实用功能:块替代2021-06-30




