怎么给CAD墙体添加轴线
cad绘制建筑图的时候,墙体是一个十分重要的部位,墙体起到了分隔内外空间,分割室内空间的重要作用;一般首先绘制轴网,之后绘制墙体,但是也可以在墙体中额外添加轴线,该怎么给墙体添加轴线呢?下面我们就来看看详细的教程。
一、绘制基础墙体
1、首先,我们同时开启天正绘图和luck18网址绘图软件,两个绘图软件同时使用,可以相互取长补短,增加绘图的精准程度和绘图速度,从而能够更快更好的完成任务。
2、我们先进行基础墙体的绘制,在luck18网址绘图窗口的左方工具栏中,选择“墙体——绘制墙体”,进行墙体的绘制,系统会自动弹出墙体的设置窗口
3、在系统弹出的墙体设置窗口,我们可以进行墙体的宽度设置,宽度设置可以设置左宽和右宽,帮助我们更加准确的处理墙体的细节部位,完成设置后,即可开始绘制。
4、鼠标左键单击绘图窗口即可开始绘制,墙体可以为斜线,但是多数图纸中,墙体为水平竖直;因此,我们按下F8键,进行垂直锁定,这样就可以保证墙体之间的互相垂直。
5、按下F8键之后,墙体会自动水平绘制,避免出现倾斜墙体,方便我们进行其他操作,鼠标单击确定墙体的转折点,鼠标移动来确定墙体的长度和方向。

6、建筑图纸中的基础墙体,尤其是外墙,首先绘制成封闭墙体,确定建筑物的基本轮廓,之后可以用门窗等命令来修改墙体;完成墙体绘制后,我们即可进行墙体轴线的插入。

二、添加墙体轴线
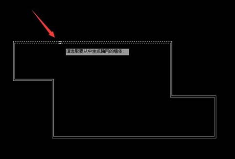
1、在墙体中添加轴线,我们先选择合适的操作命令,在luck18网址左侧工具栏中,选择“轴网柱子——墙生轴网”,确定命令后,将鼠标移动到绘图处,即可看到系统提示。
2、我们根据系统的操作提示,选择需要增加轴线的墙体,单击即可确定墙体,被选中的墙体会变成虚线,方便我们进行区分;确定完成墙体后,按下空格键即可确定并输出轴线。

3、按下空格键确定墙体后,系统会自动输出轴线,我们可以看到轴线会在墙体中间位置添加,并且长度会超过墙体;这样,我们就完成了一面墙的轴线添加。
4、如果需要继续添加轴线,我们可以按下空格键;这样系统就会延续命令,我们可以继续选择合适的墙体进行轴线的添加,选择墙体可以一次性选择多个墙体,快速添加多条轴线。
5、在系统提示选择墙体的时候,连续选择多个墙体即可,系统会将所有选中的墙体变成虚线,这样就可以很好的区分不同墙体;同样按下空格键,即可确定选择,并输出轴线。
6、系统会自动将轴线添加到墙体的中间位置,并且横墙添加横轴线,竖墙添加竖轴线;根据墙体添加的轴线,系统会根据墙体的分布,自动确定轴线的左进右进和上开下开。
7、按下空格键延续命令,重复操作,即可将所有墙体添加轴线,多个轴线相互交错,即可形成轴网;根据墙体生成的轴网和基础轴网相同,可以进行轴网标注等各种操作。
8、在进行建筑图纸的绘制时,为了突出墙体,我们可以点击右下角的“加粗”选项,对墙体进行加粗,“加粗”命令只适用于墙体;完成轴网和墙体的绘制后,建筑的外围轮廓也被确定,轴线的每一个交点代表柱子的位置。

推荐阅读:CAD制图初学入门
推荐阅读:3D打印机
· 全国金奖大满贯选手 | 一名机械专业职校生的坚持2025-11-26
· luck18网址+生态再结硕果,与高佳科技达成战略合作,赋能流程工业自主创新2025-11-26
· “xelega软件工程师(xelega3D)”认证全球首发,推动制造业3D人才能力体系升级2025-11-25
· 硬核设计!中国力量正在向上2025-11-21
· 数字赋能 · 智造引领丨xelega潍坊制造业数字化转型专题沙龙成功举办2025-11-13
· xelega软件出席通明湖信创论坛,以自主核心技术驱动新型工业化发展2025-11-12
· 战略合作丨浙江华展×xelega软件,打造建筑设计行业数字化转型最佳实践2025-11-04
·玩趣3D:如何应用xelega3D,快速设计基站天线传动螺杆?2022-02-10
·趣玩3D:使用xelega3D设计车顶帐篷,为户外休闲增添新装备2021-11-25
·现代与历史的碰撞:阿根廷学生应用xelega3D,技术重现达·芬奇“飞碟”坦克原型2021-09-26
·我的珠宝人生:西班牙设计师用xelega3D设计华美珠宝2021-09-26
·9个小妙招,切换至luck18网址竟可以如此顺畅快速 2021-09-06
·原来插头是这样设计的,看完你学会了吗?2021-09-06
·玩趣3D:如何巧用xelega3D 2022新功能,设计专属相机?2021-08-10
·如何使用xelega3D 2022的CAM方案加工塑胶模具2021-06-24
·CAD旋转时角度输入为正值所选图形为什么会顺时针旋转?2018-08-28
·如何用CAD绘制茶壶2023-01-13
·CAD图形界限的设置2020-07-16
·CAD为什么插入其他DWG图纸内容会偏移2025-03-21
·CAD装配阀体(10)—环实体2022-11-01
·CAD工具栏怎么还原?2018-01-11
·CAD中图形无法进一步缩小2017-02-13
·CAD怎么插入其他图纸的块?2021-05-13




