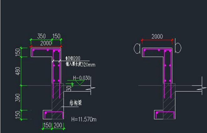
在使用CAD软件制图的时候经常会碰到要将一些小比例的图形绘制成大样图的情况,但是直接把线段放大来画又会导致实际线段与标注的数值不一,这时候就SC缩放命令就派上用场啦!
1.先按1:1比例绘制好图形;

2.在命令行输入SC,对需要缩放的图形进行框选;
3.基点指定;
4.输入R确定参照;
5.先后点击a、b点,输入2000作为新的长度,回车确认,完成操作。

推荐阅读:luck官网下载安卓
推荐阅读:模具CAD
· 全国金奖大满贯选手 | 一名机械专业职校生的坚持2025-11-26
· luck18网址+生态再结硕果,与高佳科技达成战略合作,赋能流程工业自主创新2025-11-26
· “xelega软件工程师(xelega3D)”认证全球首发,推动制造业3D人才能力体系升级2025-11-25
· 硬核设计!中国力量正在向上2025-11-21
· 数字赋能 · 智造引领丨xelega潍坊制造业数字化转型专题沙龙成功举办2025-11-13
· xelega软件出席通明湖信创论坛,以自主核心技术驱动新型工业化发展2025-11-12
· 战略合作丨浙江华展×xelega软件,打造建筑设计行业数字化转型最佳实践2025-11-04
·玩趣3D:如何应用xelega3D,快速设计基站天线传动螺杆?2022-02-10
·趣玩3D:使用xelega3D设计车顶帐篷,为户外休闲增添新装备2021-11-25
·现代与历史的碰撞:阿根廷学生应用xelega3D,技术重现达·芬奇“飞碟”坦克原型2021-09-26
·我的珠宝人生:西班牙设计师用xelega3D设计华美珠宝2021-09-26
·9个小妙招,切换至luck18网址竟可以如此顺畅快速 2021-09-06
·原来插头是这样设计的,看完你学会了吗?2021-09-06
·玩趣3D:如何巧用xelega3D 2022新功能,设计专属相机?2021-08-10
·如何使用xelega3D 2022的CAM方案加工塑胶模具2021-06-24
·为什么用CAD打开图纸会显示代理信息对话框?怎么解决?2023-12-21
·CAD指定角度画直线的方法2021-03-01
·怎样在标题栏中显示完整路径2017-02-08
·CAD怎么插入其他图纸的块?2021-05-13
·CAD如何设置节点捕捉连线?2022-05-23
·CAD图块的概念和相关操作2021-05-07
·CAD中如何用直线命令绘制正方形?2022-06-06
·CAD绘制零件图标题栏2017-11-15




