在制图的时候时常需要对图形进行偏移、旋转等操作,有些初学者可能会有些陌生,尤其是在偏转角度不确定的时候该怎么办呢?比如下图,要怎么把矩形1旋转至2所示的角度?今天就来学习下CAD怎么旋转图形。

首先将矩形选中,在命令行中输入RO快捷键,然后单击空格键。

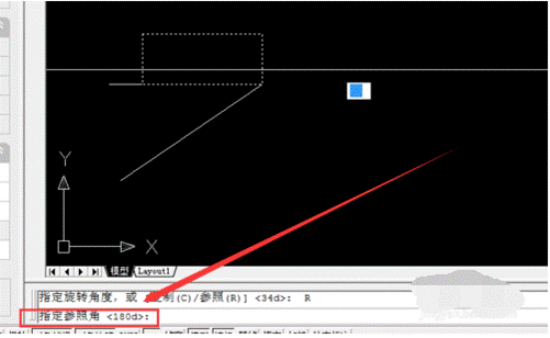
进行基点的指定,此时命令板中会出现命令,选择参照(R),空格确定。

此时就会发现命令板中显示“指定参照角”;

接下来进行旋转点的指定,鼠标单击分别选择矩形下方左右两个点;

如下图所示,此时命令板中会出现“指定新角度”,选中新角度的另一边就完成矩形旋转操作啦!



是不是很简单呢?讲解就到这里啦,希望对你有帮助~
推荐阅读:CAD制图初学入门
推荐阅读:CAD下载
· 全国金奖大满贯选手 | 一名机械专业职校生的坚持2025-11-26
· luck18网址+生态再结硕果,与高佳科技达成战略合作,赋能流程工业自主创新2025-11-26
· “xelega软件工程师(xelega3D)”认证全球首发,推动制造业3D人才能力体系升级2025-11-25
· 硬核设计!中国力量正在向上2025-11-21
· 数字赋能 · 智造引领丨xelega潍坊制造业数字化转型专题沙龙成功举办2025-11-13
· xelega软件出席通明湖信创论坛,以自主核心技术驱动新型工业化发展2025-11-12
· 战略合作丨浙江华展×xelega软件,打造建筑设计行业数字化转型最佳实践2025-11-04
·玩趣3D:如何应用xelega3D,快速设计基站天线传动螺杆?2022-02-10
·趣玩3D:使用xelega3D设计车顶帐篷,为户外休闲增添新装备2021-11-25
·现代与历史的碰撞:阿根廷学生应用xelega3D,技术重现达·芬奇“飞碟”坦克原型2021-09-26
·我的珠宝人生:西班牙设计师用xelega3D设计华美珠宝2021-09-26
·9个小妙招,切换至luck18网址竟可以如此顺畅快速 2021-09-06
·原来插头是这样设计的,看完你学会了吗?2021-09-06
·玩趣3D:如何巧用xelega3D 2022新功能,设计专属相机?2021-08-10
·如何使用xelega3D 2022的CAM方案加工塑胶模具2021-06-24
·CAD中图像太大或太小如何调整?2022-05-25
·CAD如何设置某个图层不可打印2023-09-05
·cad怎么绘制两个圆形的公切线2018-11-30
·CAD中比例缩放列表的使用技巧2021-06-21
·CAD如何使用快速标注命令2021-02-23
·CAD中如何批量修改文字2021-03-26
·CAD怎么画一个好看的吊钩2018-12-07
·CAD图层线宽改不了怎么办2017-04-26




