从二维CAD设计到三维CAD设计的升级转变,已成为不少企业在当前市场环境下,增强产品核心竞争力,转型升级的重要途径。在这个转型升级的过渡阶段,企业对设计数据的应用需求大体可分为两类:利用已有的二维数据进行三维产品的设计;在使用三维CAD设计好产品之后,需在二维CAD软件中完美兼容呈现,以便后期指导车间生产,或者对外部进行数据交互。
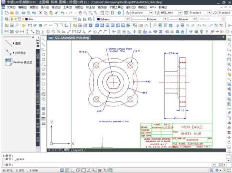
xelega3D作为国内专业高效的CAD/CAM一体化的三维CAD设计软件,能轻松、高效地满足客户在转型升级过程中,数据兼容、交互的需求。现在以二维CAD制作的图纸“Wheel Hub”为例,向大家介绍下xelega3D如何实现二维数据与三维数据之间的完美兼容、交互:

图/“Wheel Hub”的二维图纸
第一,基于二维图纸数据,实现准确的三维建模效果
一般在使用二维CAD软件进行设计时,设计师习惯使用“图层管理”对制作的图纸元素进行管理,方便后续设计过程中的操作与调整。

图/二维CAD图层特性管理器设置界面
对此,xelega3D在三维建模环境与工程图环境中均具备了图层管理的功能,能很好的满足设计师对图层管理的需要。同时,xelega3D还能对二维图纸中原有的图层进行兼容。

图/xelega3D中具备图层管理器功能

图/xelega3D图层管理器设置界面1

图/xelega3D图层管理器设置界面2
从以上图层管理器设置界面截图可看出,xelega3D的图层管理界面跟二维CAD是非常相似,设计师无需重新适应新的界面,可延续原来的操作习惯直接在xelega3D上进行操作。另一方面,xelega3D能够准确读取二维图纸中的图层,并且可进行打开、关闭、冻结、新建、删除等一系列操作。

图/用xelega3D进行图层操作的结果展示图1

图/用xelega3D进行图层操作的结果展示图2
基于前面导入的“Wheel Hub”二维图纸,用xelega3D进行三维建模,建模效果与原来相关的二维设计数据保持完全一致,保证了绘图的准确性。

图/基于二维图纸数据的建模效果
第二,按需导出,三维模型数据快速转化为二维图纸
将三维模型生成后的图纸转换为二维CAD图纸,然后通过CAD软件中进行读取查阅,是很多企业普遍存在的现实需求。xelega3D也提供了相应的导出功能,全面支持DWG、DXF等常见二维图纸格式,而在导出时,还完美兼容各种二维CAD版本。设计师可根据实际需要对输出的版本进行选择,并对所导出的图纸的信息进行个性化处理。

图/xelega3D导出二维图纸操作界面
小结:xelega3D的超强兼容性,能完美支持二维CAD与三维CAD数据之间双向交互。与此同时,在数据交互过程中,xelega3D的操作界面、流程等与主流的二维CAD软件相对一致,使设计师们在使用xelega3D时,能快速掌握操作方法,有效提高工作效率,更好地进行内外部的交流与协作。
xelega3D 2015 SP版已于9月22日发布,全面升级的版本更稳定,更高效,下载体验:http://www.zw3d.com.cn/product-58-1.html
· 全国金奖大满贯选手 | 一名机械专业职校生的坚持2025-11-26
· luck18网址+生态再结硕果,与高佳科技达成战略合作,赋能流程工业自主创新2025-11-26
· “xelega软件工程师(xelega3D)”认证全球首发,推动制造业3D人才能力体系升级2025-11-25
· 硬核设计!中国力量正在向上2025-11-21
· 数字赋能 · 智造引领丨xelega潍坊制造业数字化转型专题沙龙成功举办2025-11-13
· xelega软件出席通明湖信创论坛,以自主核心技术驱动新型工业化发展2025-11-12
· 战略合作丨浙江华展×xelega软件,打造建筑设计行业数字化转型最佳实践2025-11-04
·玩趣3D:如何应用xelega3D,快速设计基站天线传动螺杆?2022-02-10
·趣玩3D:使用xelega3D设计车顶帐篷,为户外休闲增添新装备2021-11-25
·现代与历史的碰撞:阿根廷学生应用xelega3D,技术重现达·芬奇“飞碟”坦克原型2021-09-26
·我的珠宝人生:西班牙设计师用xelega3D设计华美珠宝2021-09-26
·9个小妙招,切换至luck18网址竟可以如此顺畅快速 2021-09-06
·原来插头是这样设计的,看完你学会了吗?2021-09-06
·玩趣3D:如何巧用xelega3D 2022新功能,设计专属相机?2021-08-10
·如何使用xelega3D 2022的CAM方案加工塑胶模具2021-06-24
·CAD合并命令的快捷键是什么2020-02-24
·CAD打断合并功能怎么用?2020-06-19
·CAD如何画带圆弧的矩形?2022-08-02
·直线和平行线在CAD中怎么用?2020-03-10
·CAD如何解决移动图形坐标跟着移动2022-02-16
·CAD中的图片保存技巧2020-04-27
·CAD快速绘制渐开线齿轮的插件2024-06-24
·CAD对象捕捉是什么意思2016-10-25