我们在创建好图层之后,就可以在不同的图层内绘制图形了。灵活地使用图层,在能够使图面清晰、简洁,同时也能为绘图和打印带来便利。
1.切换当前图层
当前层时当前工作状态下所处的图层。当设定某一图层为当前层后,接下来绘制的图形对象都将位于该图层中。如果以后想在其他图层中绘图,就需要更当前层设置。
我们只需要在【图层特性管理器】右侧选项框下拉之后看到我们不同的图层,我们只需要选中需要的图层,就可以设置其为当前的图层,并且该图层的各类详细的设置都显示出。

我们也可以通过点击【图层特性管理器】,在他们弹出的对话框中进行当前图层的设置,参考下图。

2.转换当前图形所在的图层
在CAD中,我们还可以十分灵活的进行图层转换,即将某一图层内的图形转换至另一个图层,同时使其颜色、线型、线宽等特性发生变化。
如果某图形对象需要转换图层,此时可以先选择该图形对象,然后单击展开【图形】工具栏或者面板中的【图层】下拉列表,选择到要转换的目标图层即可,参考下图。

此外,通过【特性】和【快捷特性】选项板也可以转换图形所在的图层。选择需要转换图层的图形,打开【快捷特性】或者【特性】选项板,在【图层】下拉列表中选择目标图层即可,参考下图。

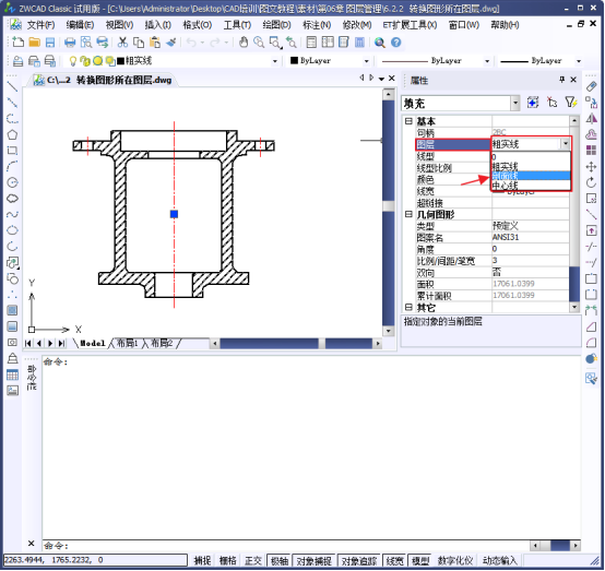
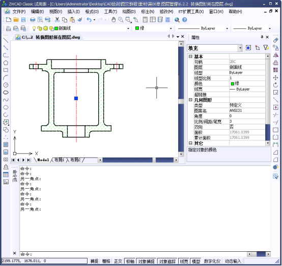
实例:转换图形所在图层
1.我们使用luck18网址打开我们素材文件,参考下图。

2.单击选择剖面填充图案,展开【图层】面板中的【图层】下拉列表,选择【剖面线】图层作为目标图层,参考下图。

3.选择好之后,我们就可以看到填充的图案立即继承【剖面线】图层的相关特性,包括线宽、颜色等,我们可以和上图做出对比,参考下图。

技巧点拨:
展开【图层】面板或工具栏中的【图层】下拉列表,单击状态图标,可在不打开【图层特性管理器】选项板的情况下,快速设置图层的状态。